Share with a friend

Please check you have entered all details correctly:

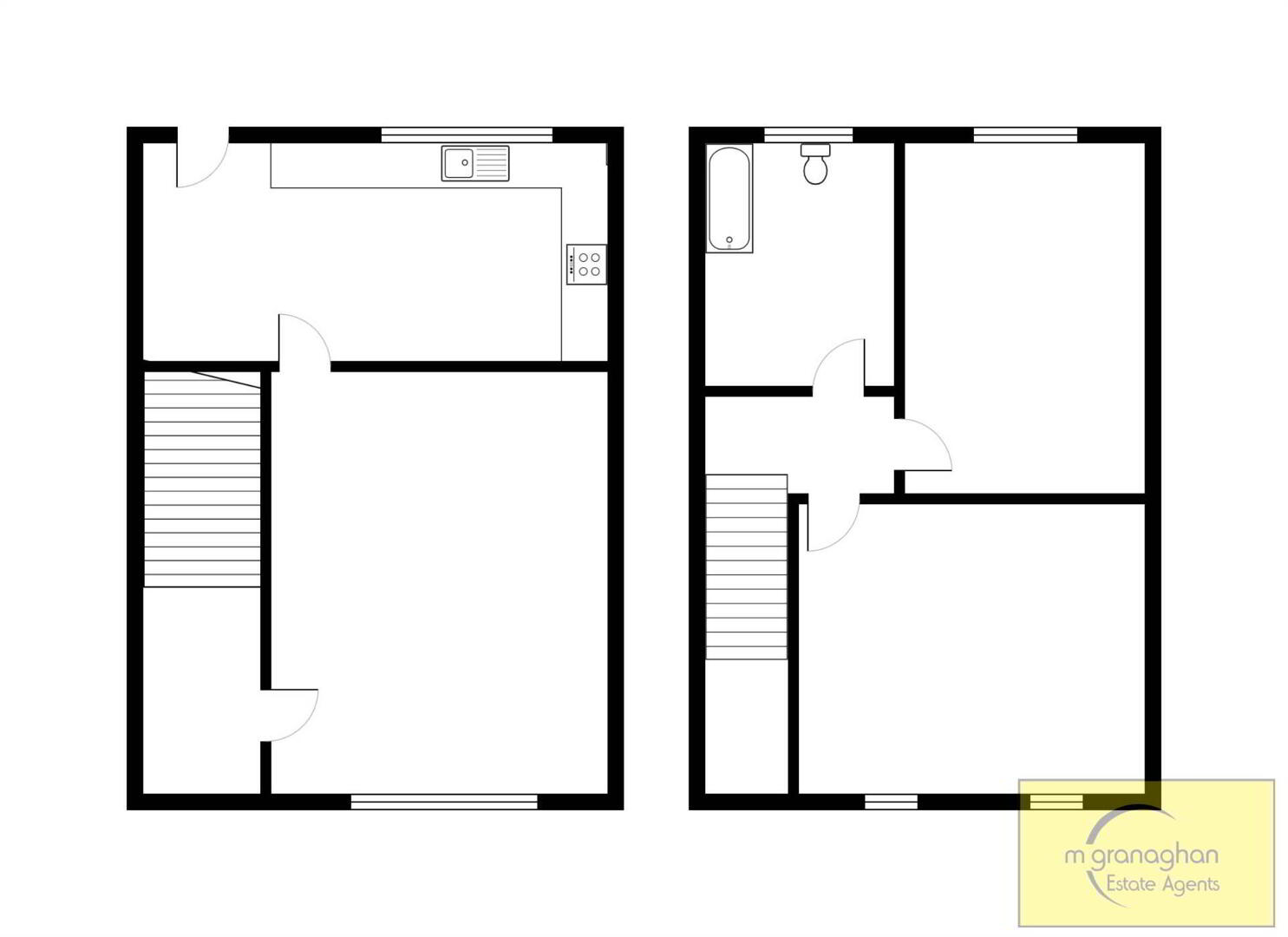
34 Brompton Park, Ardoyne, Belfast, BT14 7LD

  • Terrace House
  • 2 Bedrooms
  • 1 Reception

Key Information

Address 34 Brompton Park, Ardoyne, Belfast, BT14 7LD
Style Terrace House
Bedrooms 2
Receptions 1
Bathrooms 1
Heating Gas
Size 50 sq. metres
EPC Rating D65/C70
Status Sold
   

Property Features at a Glance

  • Excellent Terrace Home in Convenient Location
  • Bright and Spacious Lounge
  • Modern Fitted Kitchen with Built in Appliances
  • Two Generous Bedrooms with Master Built in Sliderobes
  • White Family Bathroom with Shower Screen
  • Gas Fired Central Heating
  • Upvc Double Glazed Windows
  • Front Brick Pavier Driveway/Forecourt
  • Enclosed Rear Courtyard

Additional Information

An excellent terrace situated in a popular residential area that is convenient to local shops, schools and within easy reach of Belfast City Centre and surrounding amenities.

Upon entering the home, you`ll find a welcoming living room that leads to the modern fitted kitchen with ample storage space that overlooks the rear yard.

There are two bedrooms, both generously sized with master offering built in mirrored slide robes for that extra storage. The family bathroom has a panel bath with shower screen.


Early viewing is recommended!



GROUND FLOOR

ENTRANCE HALL

LOUNGE - 10'5" (3.18m) x 13'11" (4.24m)
Laminate flooring, feature fireplace, bay window

KITCHEN - 13'1" (3.99m) x 7'2" (2.18m)
Modern fitted kitchen with a range of high and low level units, formica work surfaces, stainless steel drainer, built in oven with ceramic hob and overhead stainless steel extractor fan, part tiled walls and vinyl flooring over looks rear courtyard

FIRST FLOOR

BEDROOM (1) - 9'8" (2.95m) x 9'11" (3.02m)
Mirrored sliderobes

BEDROOM (2) - 7'1" (2.16m) x 9'6" (2.9m)

BATHROOM - 6'9" (2.06m) x 5'6" (1.68m)
White family bathroom suite comprising of panel bath with shower screen, wash hand basin, low flush WC, PVC wall cladding, vinyl flooring

OUTSIDE

FRONT
Brick pavier forecourt

REAR
Fully enclosed courtyard



Notice
Please note we have not tested any apparatus, fixtures, fittings, or services. Interested parties must undertake their own investigation into the working order of these items. All measurements are approximate and photographs provided for guidance only.