Additional Information
**Penthouse Apartment for Sale, Pinetree Court, Glen Road, West Belfast Offers Over £149,950**
A rare opportunity to acquire this stunning penthouse apartment in the highly sought-after Pinetree Court, offering spectacular panoramic views over West Belfast. Priced at offers over £149,950, this property combines modern living with exceptional convenience and style.
Upon entering, you are welcomed by a spacious entrance hall that leads seamlessly into a bright, airy, and generously proportioned open-plan living area. The living space benefits from large UPVC double glazed windows, flooding the room with natural light and framing breathtaking vistas across the cityscape.
The contemporary fitted kitchen is thoughtfully designed with ample storage and integrated appliances, perfect for both everyday living and entertaining guests. The apartment comprises two well-sized bedrooms, each offering comfort and tranquillity.
The sleek, modern bathroom features a walk-in shower, complemented by high-quality fixtures and fittings, providing a luxurious finish. Additional benefits include gas central heating ensuring warmth throughout the year, lift access for ease and convenience, and secure gated car parking, a prized feature in this popular location.
Pinetree Court is ideally situated on Glen Road, close to local amenities, transport links, and recreational facilities, making it an excellent choice for professionals, couples, or investors seeking a stylish home with outstanding views.
Early viewing is highly recommended to fully appreciate the quality and position of this exceptional penthouse apartment. Contact us today to arrange a private appointment.
PENTHOUSE
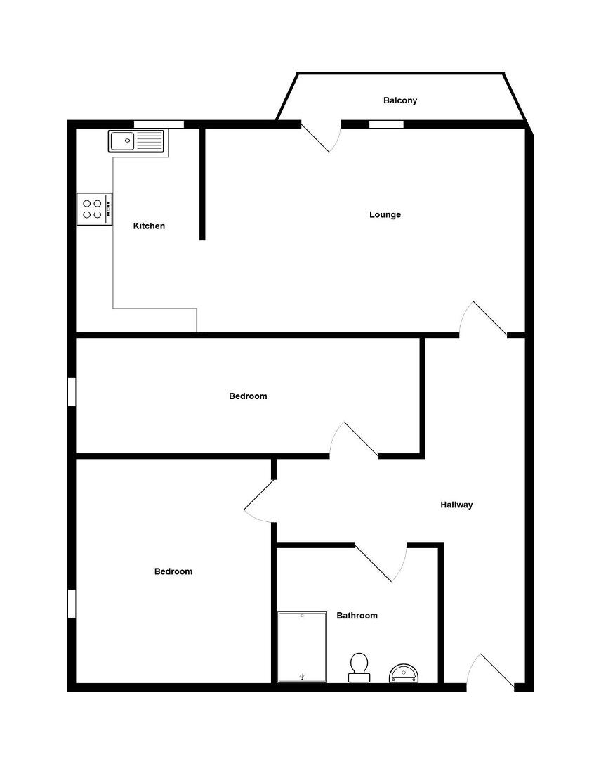
Hallway
Welcoming entrance with laminate flooring and access to rooms.
Lounge - 19'9" (6.02m) x 13'9" (4.19m)
Stylish open-plan living area laminate flooring and large window/door opening onto the balcony, enjoying elevated views.
Kitchen - 12'7" (3.84m) x 6'8" (2.03m)
Fitted kitchen with a range of high and low level units, formica work surfaces, stainless steel sink drainer, built in oven with four ring gas hob and overhead stainless steel extractor fan, plumbed washing machine, part tiled walls, vinyl flooring, ceiling spots and roof window for natural light.
Bedroom 1 - 10'2" (3.1m) x 8'0" (2.44m)
Laminate flooring
Bedroom 2 - 11'9" (3.58m) x 6'9" (2.06m)
Laminate flooring
Bathroom - 7'7" (2.31m) x 6'4" (1.93m)
White suite comprising of walk in shower, vanity unit wash hand basin, low flush WC, pvc wall covering, vinyl flooring, chrome towel rail
Balcony
Private outdoor seating area directly off the living space, finished with artificial grass and screening, ideal for morning coffee while enjoying far-reaching city views.
OUTSIDE
Gated communal car parking
what3words /// hidden.tiger.memory
Notice
Please note we have not tested any apparatus, fixtures, fittings, or services. Interested parties must conduct their own investigation into the accuracy of the description and the working order of these items. All measurements are approximate and are obtained by a Laser Tape and, therefore, may be subject to a minor margin of error. Photographs provided for guidance only. Floor plan layouts are for illustrative purposes only and not to scale. We reserve the right to change any data or format of any page of the site without notice. Anti-Money Laundering (AML) obligations: Estate agents are supervised by HM Revenue & Customs (HMRC) and must comply with the Money Laundering Regulations 2017. Upon agreement of a sale, purchasers will be asked to produce identification documentation and complete an online AML check. This will be kept on record in the event of an HMRC inspection. We are members of the Property Redress Scheme.